Die Ferienwohnung liegt im hinteren Teil des Hauses. Der Zugang erfolgt über eine historische Bruchsteintreppe, die in einen kleinen, geschützten Innenhof führt. Von hier aus betritt man die gemütliche Wohnküche. Rechter Hand liegt das Wohnzimmer. Daran anschließend gelangt man zum Schlafzimmer mit Duschbad.
Die Wohn- und Schlafzimmer orientieren sich zum Garten hin. Dieser liegt aufgrund der Hanglage des Grundstückes etwa 2 Meter (1 Stockwerk) tiefer als die Wohnung, was dazu führt, dass man den wunderschönen Blick über das Sehmatal Richtung Geyer genießen kann.
Die Wohnung ist für 1-2 Personen ausgestattet, mit der Möglichkeit, eine weitere Person auf einem Schlafsofa unterzubringen. Das 1,20 m breite Einbaubett, das nur von einer Seite aus zugänglich ist, bietet einen behaglichen Rückzugsort – großzügig für eine Person, gemütlich für zwei.
Wir lieben das kleine aber feine Bad, mit ebenerdiger Dusche, Akazienholzwaschtisch und echtem Schiefer. Das erzgebirgische kalkfreie Wasser hinterlässt hier keine hässlichen Flecken! :) Bei Bedarf steht eine Waschmaschine mit Trockner, sowie einem Bügeleisen mit -brett in einem gesonderten Raum zur Verfügung.
Das helle Wohnzimmer öffnet sich über eine großzügige Fenstertüranlage zu einem Balkon, dessen Fertigstellung für das kommende Jahr vorgesehen ist.
Die Wohnküche ist mit Geschirr, Pfannen und Töpfe für 2 Personen ausgestattet und wird bei Bedarf für eine weitere Person erweitert. Die Küche ist auf Selbstversorgung ausgelegt. Nach einem langen Ausflugstag bietet es sich deshalb an, Abendbrot oder ein warmes Essen in der Ferienwohnung zuzubereiten. Dafür stehen die üblichen Küchengeräte zur Verfügung: Induktionskochfeld (2 Flammen) mit Ablufthaube, Kombibackofen (Mikrowelle/Heißluft), Kühlschrank mit Eisfach sowie Geschirrspülmaschine - und auch Kaffee kann man kochen.
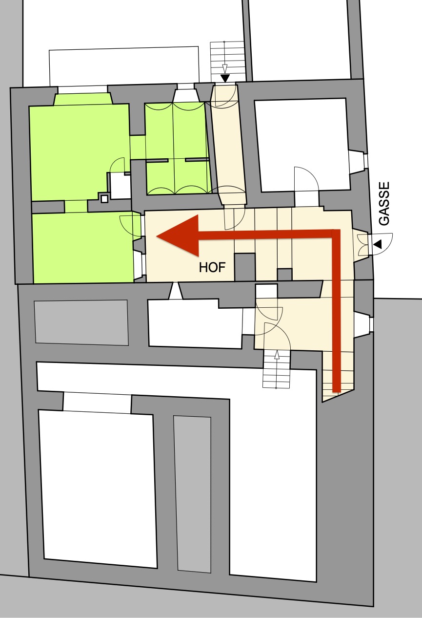
Im Sommer bietet der Hof an heißen Tagen einen wunderschönen, kühlen Sitzplatz zum Verweilen. Dieser Hof hat auch einen direkten Zugang zu der Hopfengasse, die nach ein paar Schritten bergauf, auf die Wolkensteiner Straße führt.
Bei dem manchmal rauen erzgebirgischen Herbst- und Winterwetter haben Sie in dieser Wohnung einen gemütlichen Rückzugsort!
Adresse: Wolkensteiner Straße 33, 09456 Annaberg-Buchholz, , Deutschland
Größe: 45.0 m², 3 Zimmer, 1 Schlafzimmer, 1 Bad
Betten: 1 Queensize Bett, 1 Schlafsofa
Preise: 85 EUR - 135 EUR / Nacht
Weitere Preisinformationen:
Mindestaufenthalt
2 Nächte in der Übergangs- und Sommersaison
In der Wintersaison ebenfalls.
Zahlungsmodalitäten
Anzahlung 25% bei Buchung
Restzahlung 30 Tage vor Anreise
Stornierung
Stornierung bis 30 Tage vor Anreise 25% und ab 30 Tage 100% des Aufenthaltspreises.
(Vgl. AGB)
Endreinigung 35€
Gästetaxe 1,80 € pro Person und Tag, ermäßigt 0,90 €
Weiterführende Angaben siehe : https://www.annaberg-buchholz.de/de/gaestekarte-erzgebirge.php
Die Schlüsselübergabe erfolgt mittels einer PIN für einen Schlüsseltresor.
Vor allem beim Transport des Gepäcks ist der Zugang über die Hopfengasse eine große Erleichterung. Der Gebrauch des Durchsteckschlüssels wird im Folgenden erläutert:
Zum Video bitte hier tippen: Durchsteckschlüssel
Die Große Kreisstadt Annaberg-Buchholz erhebt Gebühren (1,80 € pro Tag) für die "Erzgebirgische Gästekarte". Mit dieser Gästekarte erhalten Sie eine Vielzahl von Vergünstigungen und Rabatte beim Eintritt in Museen, Veranstaltungen, Führungen.
Die Gästekarte liegt bei Ihrer Ankunft auf dem Schreibtisch im Wohnzimmer bereit.
Lage der Wohnung und der Waschküche (Waschmaschine, Trockner, Bügelbrett und Bügeleisen):


Die Stein 33 ist die perfekte Ferienwohnung für Annaberg. Die Wolkensteiner Straße ist eine großen Einkaufsstraße und die wichtigste Straße, die von Osten in die Stadt führt. Bis zum Marktplatz sind es keine 5 Minuten zu Fuß. Alle für einen Ferienaufenthalt nötigen Läden befinden sich in der Nähe.
Im Nachbarhaus befindet sich der Sportladen "Freiluft", der Skiausrüstung ausleiht und sowohl im Sommer als auch im Winter geführte Touren im Erzgebirge anbietet.
Auf der anderen Seite der Ferienwohnung liegt das Tal. Der Blick ins Grüne - im Winter hoffentlich ins Weiße - ist Entspannung pur. Die Sonne wird Sie nicht aus dem Bett kitzeln, dafür können Sie den Sonnenuntergang genießen.
Die Küche des Erzgebirges ist einfach und deftig. Und man scheint früh ins Bett zu gehen, denn die Gaststätten bieten selten spät abends noch warme Speisen an.
Zentrale Lage in Europa heißt nicht unbedingt gute Erreichbarkeit.
Bergbaustädte liegen nicht unmittelbar an Autobahnen, internationalen Flughäfen und ICE-Trassen. Aber schon in historischen Zeiten mussten Menschen und Material die Stadt erreichen, es ist also möglich.
Mit dem Auto fährt man über die A72, am günstigsten liegt die Ausfahrt "Stollberg West". Am Wochenende kann kostenlos vor der Tür geparkt werden, werktags in den Seitenstraßen. Am Marktplatz gibt es ein Parkhaus.
Mit dem Zug gibt es eine landschaftlich wunderschöne Verbindung mit der Erzgebirgsbahn ab Chemnitz. Der "Untere Bahnhof" liegt tatsächlich tief im Tal zwischen Annaberg und Buchholz. Eine Transferfahrt zur Wohnung ist ratsam.
Der Busbahnhof "Wolkensteiner Tor" ist hingegen in nur 5 Minuten zu Fuß erreichbar. Für eine preiswerte Anreise empfehlen wir eine Kombination aus Fernbus bis Chemnitz und dann die Weiterreise mit dem Regionalverkehr, der eine Stunde bis Annaberg braucht.